
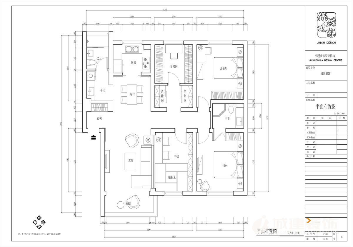
本案戶主是剛步入新婚之喜的小兩口,極愛養(yǎng)貓,所以客廳處辟出一隅作為愛貓的家;戶型結(jié)構(gòu)上在廚房區(qū)域、衛(wèi)浴區(qū)域以及書房衣櫥間都做了極大的改動。














本案戶主是剛步入新婚之喜的小兩口,極愛養(yǎng)貓,所以客廳處辟出一隅作為愛貓的家;戶型結(jié)構(gòu)上在廚房區(qū)域、衛(wèi)浴區(qū)域以及書房衣櫥間都做了極大的改動。













你家預(yù)算
108080元
0元電話報價
0571-87248729